r

Arhitekturom unaprijediti obrazovni sistem

Arhitekta Radovan Radoman za “Vijesti” predstavlja rad koji je dio Paviljona Crne Gore na Bijenalu u Veneciji

9257 pregleda 98 reakcija 0 komentar(a)
Foto: Privatna arhiva
Foto: Privatna arhiva

Dosadašnja praksa izgradnje i rekonstrukcije škola nije u skladu sa savremenim pedagoškim konceptima i različitim vrstama podučavanja i usvajanja znanja... Jedino što moramo shvatiti je da bez strategije i duboke povezanosti pedagogije i arhitekture ne možemo praviti progresivne korake, poručuje arhitekta Radovan Radoman koji je sa svojim timom autor rada koji je dio Paviljona Crne Gore na ovogodišnjem Bijenalu arhitekture u Veneciji.

Pored Radomana, u timu su i: dipl.ing. Eldin Kabaklija, doc. dr Jovana Marojević i mr Milica Jaramaz, a njihov rad je usmjeren ka unapređenju crnogorskog obrazovnog sistema i arhitekture, tekstualne i naučne prirode, ali prilagođen izložbi.

“Rad koji smo dostavili je tekstualnog i naučnog tipa, prilagođen za predstavljanje na Bijenalu, a suštinski usmjeren ka unapređenju crnogorskog obrazovnog sistema i infrastrukture. S toga ovaj rad nije pogodan za predstavljanje putem grafičkih priloga, video-zapisa i sl. Sa druge strane, veoma je prigodan za diskusiju, okrugle stolove i slične koncepte, kojima bi se ova tema približila crnogorskoj javnosti”, kaže Radoman za “Vijesti”.

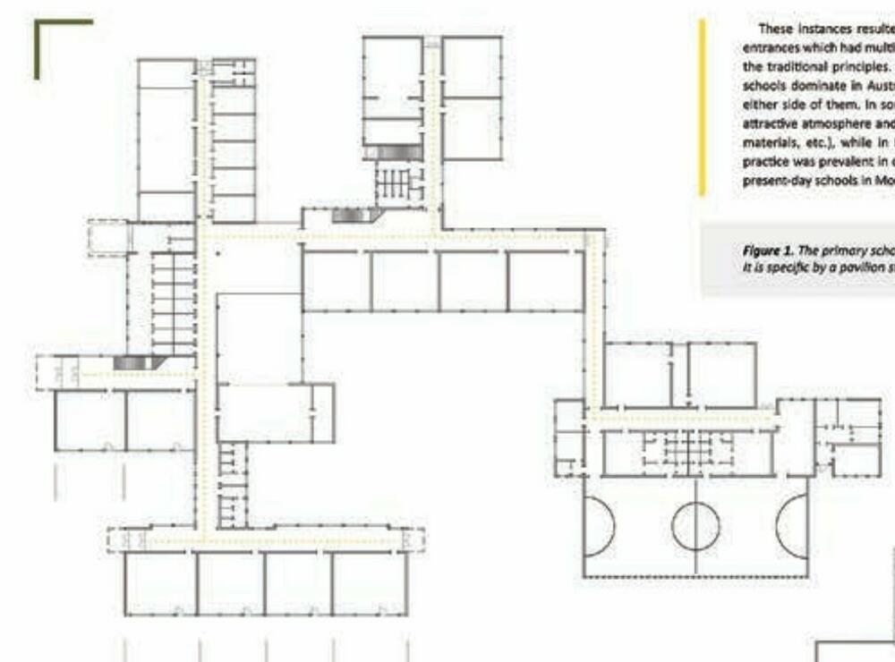
Prikaz rada
Prikaz radafoto: Privatna arhiva

Njegov i rad tima autora rezultat je stručne konferencije koju su 2022. godine organizovali u Podgorici. Predstavljanje na Bijenalu je bila prilika da tema i njen značaj dođu do što većeg broja stručne javnosti. Rad je utemeljen na aktuelnim tokovima u okviru Evropske unije, objašnjava on, a implementacija tih principa bi imala veliki značaj u crnogorskom društvu. Tim radom se ukazuje da dosadašnja praksa izgradnje i rekonstrukcije škola nije u skladu sa savremenim pedagoškim konceptima i različitim vrstama podučavanja i usvajanja znanja.

“Rad je baza za studiju, sistemsku saradnju i formiranje društva znanja”, kaže Radoman, uz najavu da će u budućnosti organizovati još jednu konferenciju namijenjenu stručnoj javnosti.

Rad za Bijenale je proizašao iz prošlogodišnje konferencije “Školska infrastruktura i arhitektonski konkursi u Austriji”, gdje je bilo riječi o ofanzivi izgradnje škola širom Evrope i neophodnom dijalogu između arhitekture i pedagogije.

Segment Radomanovog rada
Segment Radomanovog radafoto: Privatna arhiva

“Početkom 2000-ih u Austriji se javila potreba za iskorakom u skladu sa savremenim potrebama, dok se u Crnoj Gori ostalo na istom nivou do današnjih dana. Kada pogledamo građevinski preobražaj zadnjih decenija, to se ispostavilo kao i ne tako loše. Ovo znači da se školska infrastruktura nije razvijala, ali se istovremeno i nisu gradili objekti bazirani na zastarjelim, kako pedagoškim, tako i arhitektonskim konceptima. Zato bi trebalo učiti na kvalitetnim primjerima, pri čemu se austrijska ‘školska ofanziva’ ističe kao jedan od najprogresivnijih pokreta koji se trenutno dešavaju u Evropi. Ona predstavlja izgradnju i rekonstrukciju više od 400 škola, baziranih na savremenom pedagoškom sistemu, razvijanom više godina i usklađenom kako domicilnom društvu i mentalitetu, tako i savremenim globalnim dešavanjima u pogledu tehnologija, migracija itd”, objašnjeno je o radu autorskog tima.

Detaljnim sagledavanjem procesa kroz koji prolazi Austrija, Crna Gora bi mogla izbjeći sve ono što se pokazalo nefunkcionalnim, poručuje Radoman. On naglašava da bi time čitav proces kod nas išao mnogo brže, ekonomičnije, sa manje eksperimentisanja u pogrešnom pravcu.

“Škola više nije mjesto u kome se samo drže predavanja, već postaje mjesto boravka u kome se djeca osjećaju kao kod kuće, zatim kulturni i sportski centar. Ona je svakako za učenike i nastavnike mjesto socijalne interakcije”, podsjeća Radoman.

On kaže da je za sprovođenje takvog tipa nastave potrebna adekvatna prostorna infrastruktura, o čemu govori i rad koji je tim predstavio u Veneciji.

Kada je u pitanju kompletna crnogorska postavka i koncept Paviljona, arhitekta iskreno kaže da u početku nije razumio veliki broj učesnika koji su trebalo da predstavljaju jednu zemlju, pa ni i totalnu slobodu za odabir teme i njenu razradu.

Međutim, dodaje on, kroz proces rada je shvatio da je upravo takva ideja bila odlična i da je zapravo poenta da se prikupi veliki broj kvalitetnih radova i ideja koje su prvenstveno značajne za crnogorski kontekst i društvo.

Radovan Radoman
foto: Privatna arhiva

“Time su sredstva uložena u ovaj projekat veoma promišljeno iskorišćena i mogu donijeti dugotrajne benefite. Pretpostavljam da je veći broj pristiglih radova moguće realizovati. Zaista mislim da je bila odlična ideja angažovati relevantne stručnjake, sagledati oblasti njihovog profesionalnog djelovanja i na taj način razmotriti koje od ideja mogu doprinijeti razvoju crnogorskog društva i arhitekture”, zaključuje Radoman.

Kustos Paviljona Crne Gore je Zoran Lazović, koji je postavku na Međunarodnoj izložbi u Veneciji, na temu “Laboratorija budućnosti”, koncipirao sa oko 150 radova 52 autora iz naše zemlje i svijeta.

Pored tima koji čine Radoman, Kabaklija, Marojević i Jaramaz, Paviljon Crne Gore u Veneciji pojedinačno i/ili u timovima, predstavljaju i autori: Luka Skansi, Mileta Bojović, Marko Radonjić, Zlatko Nikolić, Anoe Melliou, Anđelka Bnin-Bninski, Srđan Marlović, Petra Čoko, Rok Žnidaršić, Nikola Novaković, Marija Novaković, Mustafa Musić, Mladen Maslovar, Darko Karadžić, Srđan Tadić, Jelena Vlaović, Aleksandra Saša Vukićević, Anja Tadić, Bojan Vlahović, Aleksandar Marsenić, Darko Radović, Davisi Boontharm, Bratislav Gaković, Goran Ivo Marinović, Đorđe Stojanović, Milan Katić, Milica Vujović, Đurđa Garčević, Ana Tošić, Sara Jeveričić, Milena Delević Grbić, Andrej Jovanović, Aleksandar Čarnojević, Aleksandar Suhanov, Marijana Simić, Jelena Ivančević, Ema Alihodžić Jašarović, Nemanja Milićević, Goran Andrejin, Sonja Dubak, Maša Mušikić, Stanislava Predojević, Ksenija Radovanović, Duško Miljanić, Branislav Strugar, Branislav Milatović i Andrija Mugoša.

Pokrovitelj učešća Crne Gore na 18. Bijenalu arhitekture je Ministarstvo ekologije, prostornog planiranja i urbanizma, a organizator Direktorat glavnog državnog arhitekte - Direkcija za razvoj i promociju arhitekture.

Prestižna manifestacija koja pravi otklon od komercijalnih tokova

Radovan Radoman je arhitekta studija "Schluder Architekten" u Beču. Osnovne i specijalističke studije arhitekture završio je na Univerzitetu Crne Gore. Nagrađivan je na 20. Salonu arhitekture u Novom Sadu, drugom salonu arhitekture u Crnoj Gori, Balkanskom bijenalu arhitekture, kao i na brojnim otvorenim arhitektonskim konkursima Evropske unije. Njegova specijalnost je obrazovna arhitektura.

Za "Vijesti" kaže da je nekoliko puta imao priliku da posjeti prestižnu manifestaciju, ali su mu doživljaji, kaže, različiti i zavise od teme i samog kuratora.

"Nailazio sam na upečatljive i inspirišuće paviljone, dok je bilo dosta i onih koji nijesu ostavili značajan utisak. Bijenale je prestižna manifestacija, veoma značajna za promociju arhitekture, kao i eksperimentisanje u ovoj oblasti. Značajna je po tome što često pravi otklon od komercijalnih tokova, posvećuje se održivim temama i doprinosi naučnom promišljanju", objašnjava Radoman.

Bonus video: